Clark Arkitektur
Works
About
Recent Work
Architecture competitions
House in Skår
A (Simple) Home
At Home
Villa K
Ski cabin in Vemdalen
Sundsby Kile
House With a Patio
10x10
Sporred Park
Guesthouse on Björkö
UK Residence
Penthouse MH
House T
Vilafranca
House DV
Residence AD
Summerhouse N
House on Instön
Villa F
Villa H
Interiors
By the Sea
Case Studies
(Small) things
35 mm – Architecture photography
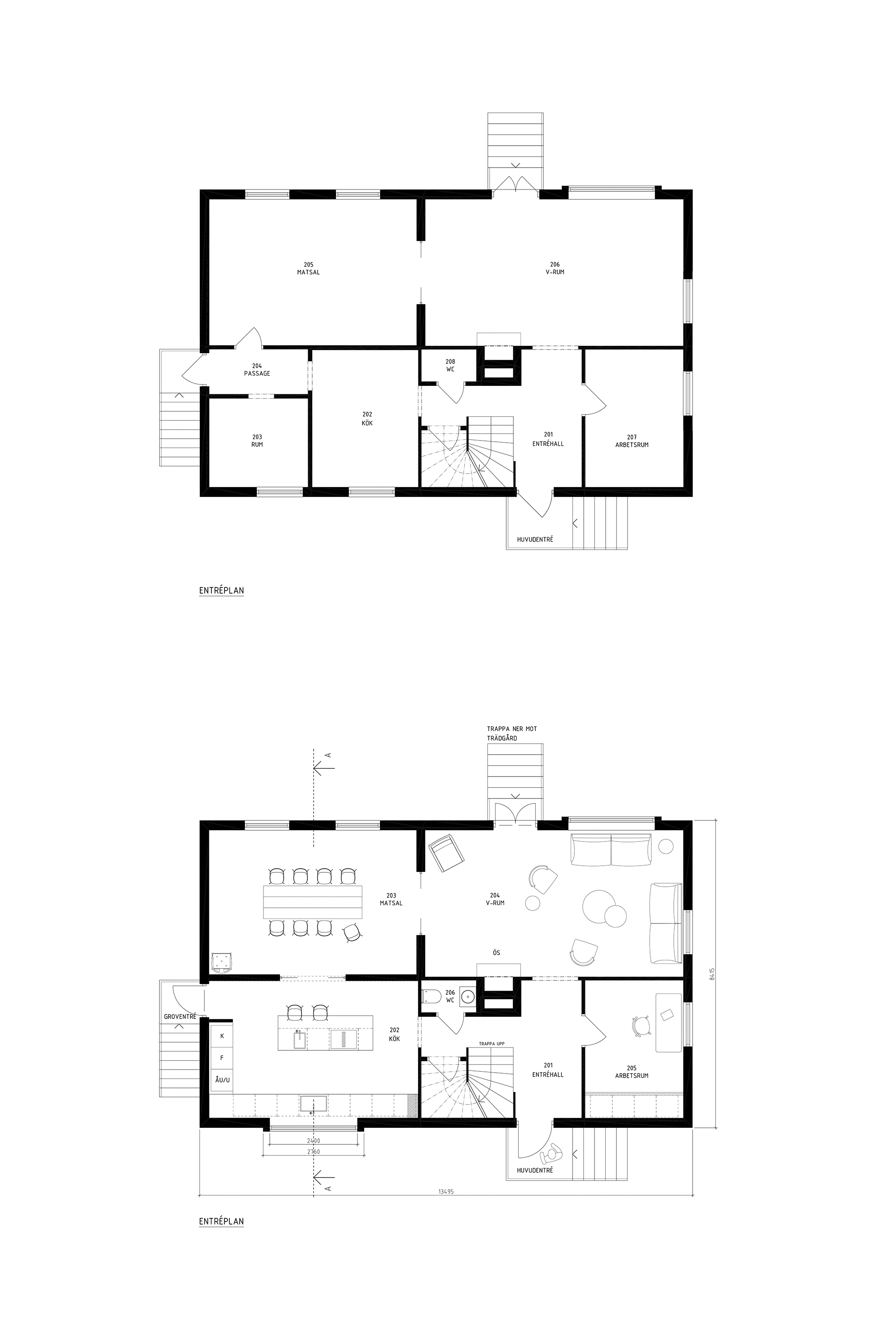
House in Skår
A slightly atypical late 1940s “Funkis” (the Swedish version of the early 20s European Modernism) private residence in Göteborg is carefully updated through precise plan adjustments and façade modifications, ensuring the house meets contemporary requirements while maintaining its architectural character. The respectful yet comprehensive approach resulted in an improved area for social gatherings and enhanced natural light and functional flow for the entire ground floor.
I 2022 – 2025 I
Concept
Early ideas and studies for plan layouts, materials and color palette.
PREV PROJECT
Architecture competitions
NEXT PROJECT
A (Simple) Home