Clark Arkitektur
Works
About
Recent Work
Architecture competitions
House in Skår
A (Simple) Home
At Home
Villa K
Ski cabin in Vemdalen
Sundsby Kile
House With a Patio
10x10
Sporred Park
Guesthouse on Björkö
UK Residence
Penthouse MH
House T
Vilafranca
House DV
Residence AD
Summerhouse N
House on Instön
Villa F
Villa H
Interiors
By the Sea
Case Studies
(Small) things
35 mm – Architecture photography
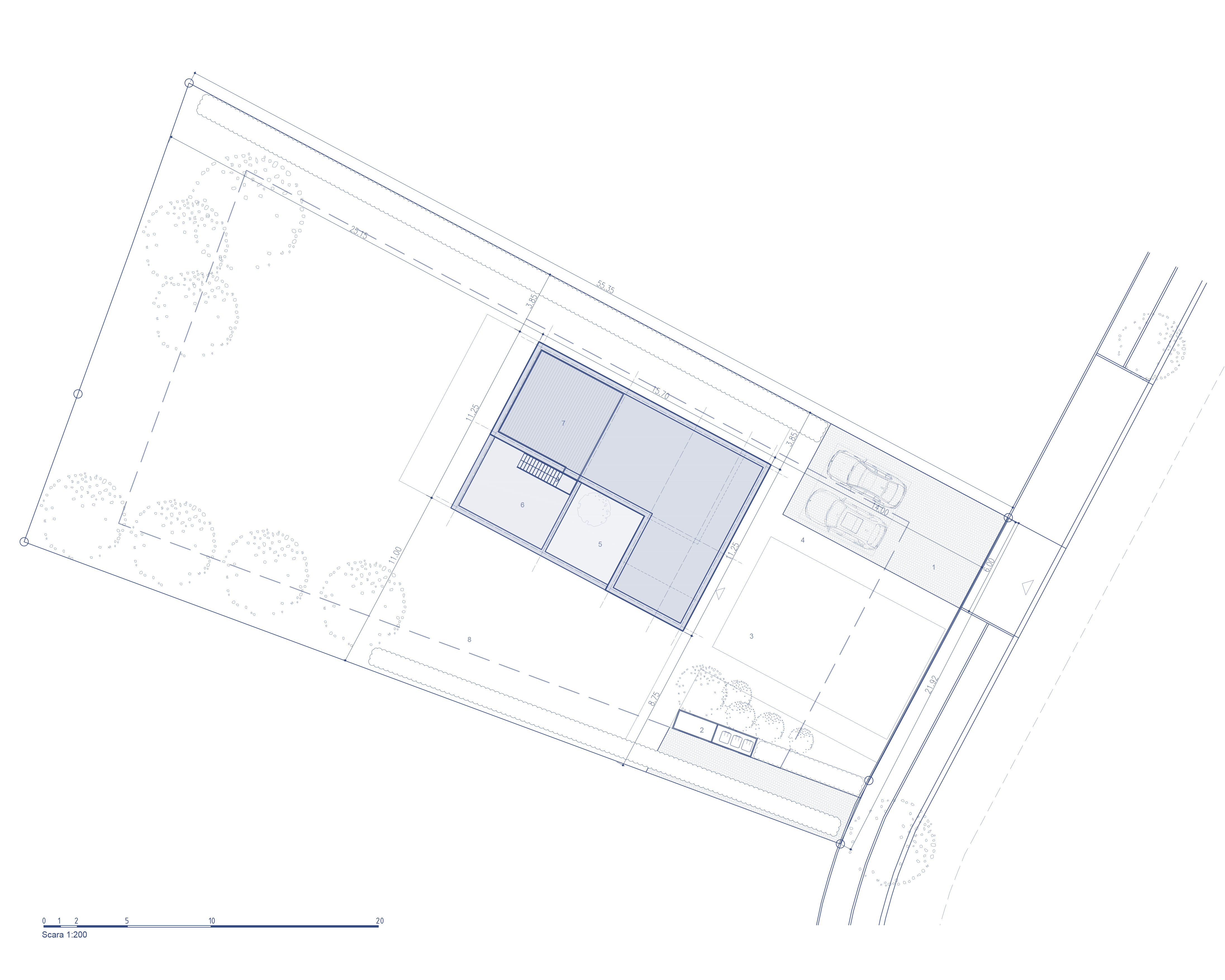
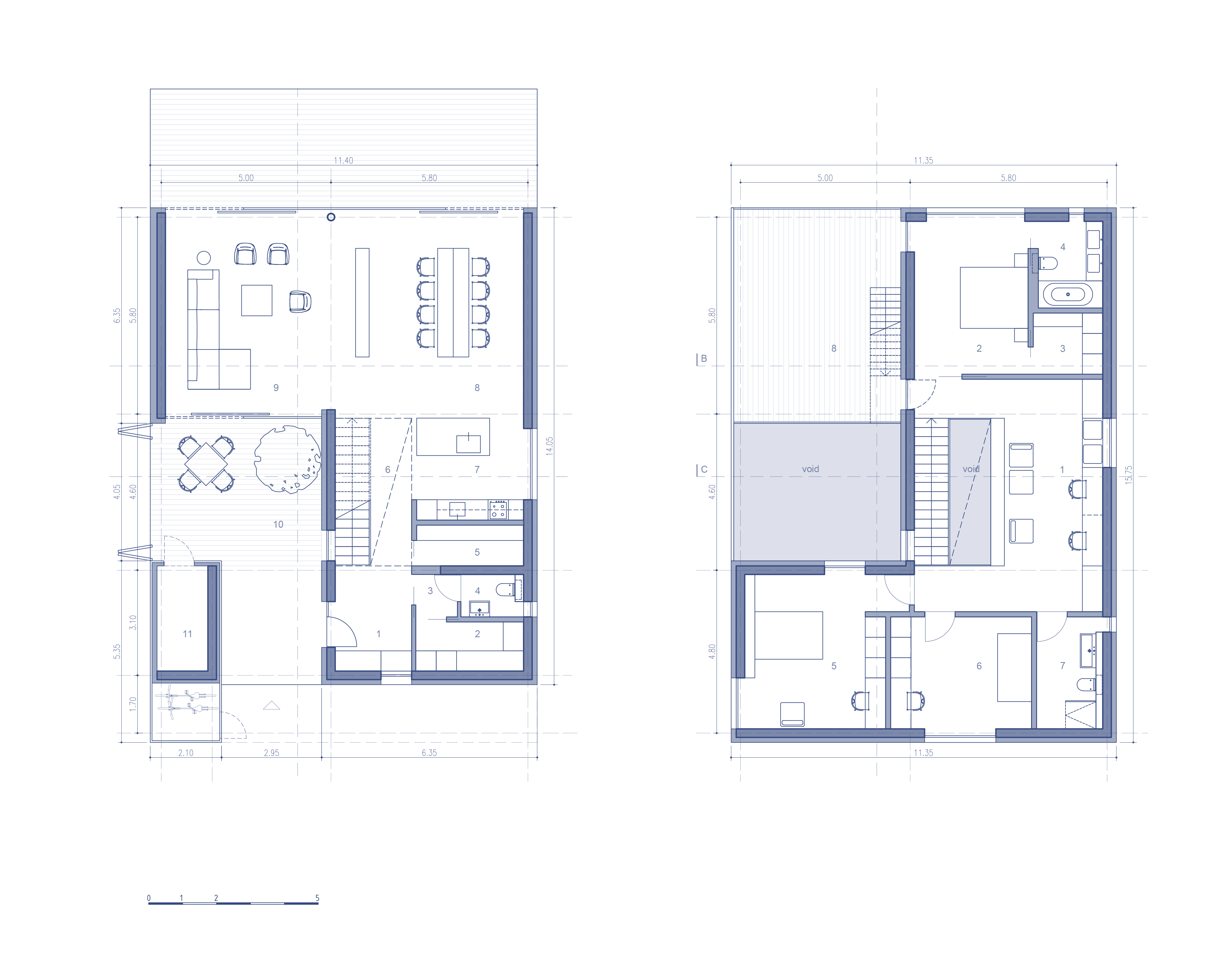
House DV
Competition entry for a single-family house prototype. In collaboration with
OAO
. Re-worked images. Unbuilt.
PREV PROJECT
Vilafranca
NEXT PROJECT
Residence AD